PUMPS AND TANK PLATFORM
Hampton Roads Bridge-Tunnel Expansion (HRBT)
SUMMARY
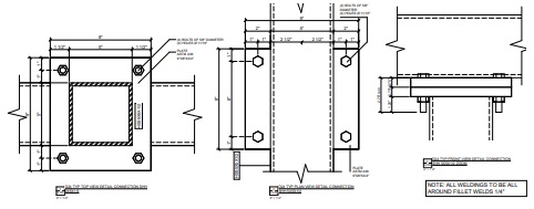
For the design of connections and base plate, the commercial software IDEA StatiCa was used, as established in the AISC 360-16 ASD code.
The I-64 Roads Bridge-Tunnel in southeastern Virginia, between the cities of Hampton and Norfolk, has long been one of the most congested corridors of the region. The existing 3.5-mile facility consists of two, 2-lane immersed tube tunnels on artificial islands with trestle bridges to shore. These tunnels opened in 1957 (current westbound lanes) and 1976 (eastbound lanes) and are approximately 7,500 feet long.
The Hampton Roads Bridge-Tunnel (HRBT) Expansion Project will ease this congestion by widening the 4-lane segments of the I-64 corridor in the cities of Hampton and Norfolk. As part of the Hampton Roads Bridge Tunnel Project, Hampton Roads Connector Partners have asked AZIERTA to assist in the structural design study for the Pumps and Tank Platform. The basic scope of the Project consists of the evaluation of the support structure for the proposed Pumps and Tank Platform Structure, shared by I-77 Mobility Partners to AZIERTA.
